Size
-
Lot size
4152 sqft
Street frontage
-
Possession
90+ days
Price per sqft
$455 - $621
Taxes
-
Parking Type
-
Style
Bungalow
See what's nearby
Description
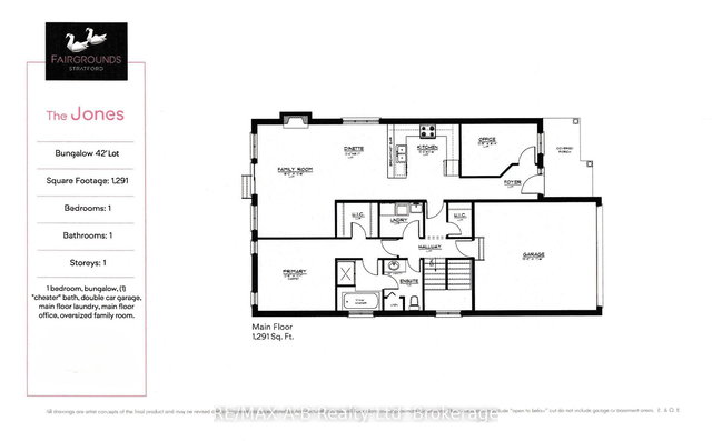
This charming Bungalow, The Jones, sits on a gracious 42' wide lot. To be built in the new Stratford Fairgrounds subdivision, this 1291 sq ft home features an open concept living room, dining room and kitchen. It boasts 9' ceilings and Barzotti soft-close cabinetry with crown moulding and quartz countertops. The bedroom and front office add to your living space, and the plan also offers a clever cheater ensuite that allows comfort for your guests and privacy for you. So many plans and finishes to choose from. It's your vision, it's your home!
Broker: RE/MAX A-B Realty Ltd
MLS®#: X12728980
Property details
Parking:
4
Parking type:
-
Property type:
Detached
Heating type:
Forced Air
Style:
Bungalow
MLS Size:
1100-1500 sqft
Lot front:
42 Ft
Lot depth:
98 Ft
Listed on:
Jan 26, 2026
Show all details



