Size
-
Lot size
7677 sqft
Street frontage
-
Possession
Other
Price per sqft
$480 - $600
Taxes
-
Parking Type
-
Style
2-Storey
See what's nearby
Description
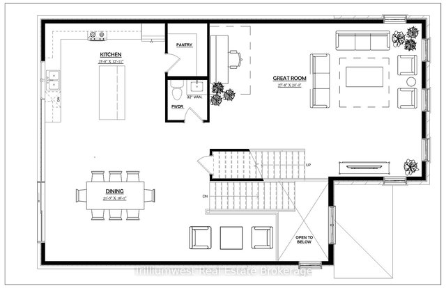
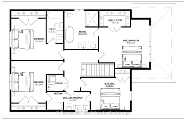
Don't miss out on the chance to create your dream home with Crescent Homes in the charming Village of Rockwood! We currently have three stunning lots available, along with the option to choose from two thoughtfully designed floor plans that cater to your family's needs.Our homes boast impressive 9-foot ceilings and a carpet-free main floor, featuring a gourmet kitchen, four spacious bedrooms, three full bathrooms, and an additional powder room. Plus, the convenience of an upstairs laundry makes everyday living a breeze. There's ample space for everyone to enjoy!Reach out to us today to discover more about building your new home in Rockwood. Your dream home awaits!
Broker: Trilliumwest Real Estate Brokerage
MLS®#: X12432308
Property details
Parking:
4
Parking type:
-
Property type:
Detached
Heating type:
Forced Air
Style:
2-Storey
MLS Size:
2000-2500 sqft
Lot front:
45 Ft
Lot depth:
168 Ft
Listed on:
Sep 29, 2025
Show all details



