Size
-
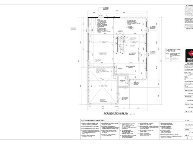
Lot size
7019 sqft
Street frontage
W
Possession
90+ Days
Price per sqft
-
Taxes
-
Parking Type
Garage
Style
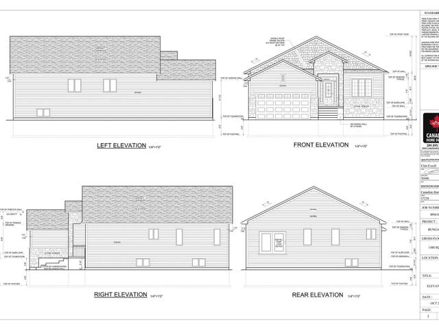
Bungalow-Raised
See what's nearby
Description
Taxes Not Yet Assessed. Custom Bungalow. Being Built. Exterior Features: Stone, Vinyl Shake, Horizontal Vinyl Siding Black Lifetime Shingles, Black Doors & Windows (White Interior) Interior Features: Smooth 9 Ft. Ceilings, Real Maple Wood Dove Tailed Joints For The Kitchen Cabinetry, Quartz Countertops, Chrome Finishes, Laminate Flooring Throughout The Home. This Meticulous Builder Is Highly Sought After, & A True Craftsmen!
EXTRAS:
EXTRAS:
Broker: REVEL REALTY INC., BROKERAGE
MLS®#: X5084668
Property details
Parking:
4
Parking type:
Garage
Property type:
Detached
Heating type:
Forced Air
Style:
Bungalow-Raised
MLS Size:
-
Lot front:
53 Ft
Lot depth:
133 Ft
Listed on:
Jan 14, 2021
Show all details
Rooms
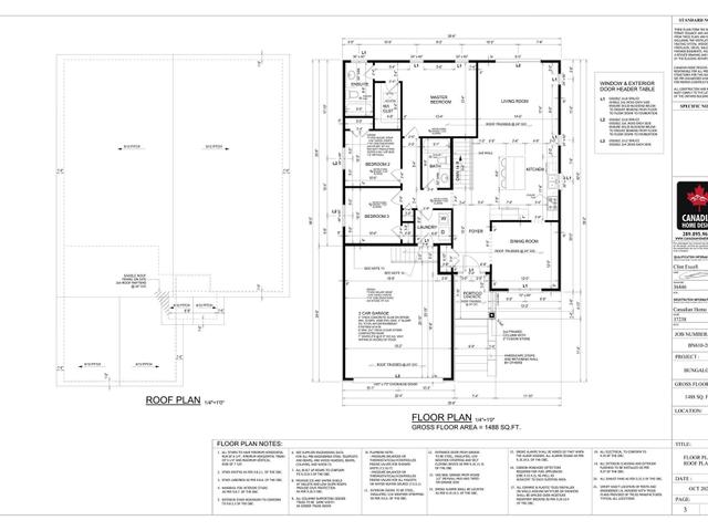
| Level | Name | Size | Features |
|---|---|---|---|
Flat | Dining | 12.0 x 12.0 ft | |
Flat | Kitchen | 12.0 x 15.0 ft | |
Flat | Living | 17.0 x 15.0 ft |







