Size
-
Lot size
12724 sqft
Street frontage
-
Possession
Flexible
Price per sqft
-
Taxes
$30,385.3 (2026)
Parking Type
-
Style
Other
See what's nearby
Description
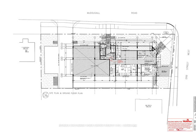
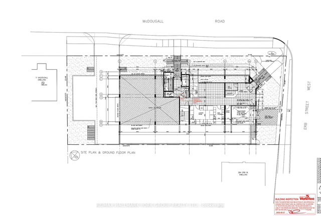
Previously approved site plan for a 35-unit rental/condominium development, zoned RMU-20 (Residential Mixed Use)-a compelling opportunity tailored for small to mid-sized developers targeting a proven, high-demand rental corridor.Positioned just steps from the University of Waterloo and Wilfrid Laurier University, the property is ideally suited for student housing as well as potential senior/retirement-oriented rental concepts. The location offers consistent, year-round rental demand driven by a strong academic and local community base. Walking distance to both campuses, combined with a direct bus stop at the doorstep, ensures exceptional accessibility and enduring tenant appeal.Offered at land value with existing building permits in place (subject to amendment for updated plans), this is a rare, near shovel-ready development opportunity-allowing investors to accelerate timelines and unlock value with minimal upfront entitlement risk.
Broker: RE/MAX HALLMARK YORK GROUP REALTY LTD.
MLS®#: X13007430
Property details
Parking:
-
Parking type:
-
Property type:
Vacant Land
Heating type:
-
Style:
Other
MLS Size:
-
Lot front:
73 Ft
Lot depth:
172 Ft
Listed on:
Apr 16, 2026
Show all details
Instant estimate:
Not Available
Insufficient data to provide an accurate estimate
i
High-
Mid-
Low-
Have a home? See what it's worth with an instant estimate
Use our AI-assisted tool to get an instant estimate of your home's value, up-to-date neighbourhood sales data, and tips on how to sell for more.



