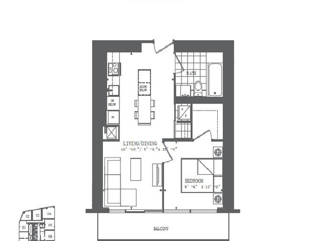
EXTRAS: S/S Fridge, Stove, B/I Dishwasher, Washer & Dryer
| Name | Size | Features |
|---|---|---|
Living | 11.0 x 10.0 ft | Combined W/Dining, Laminate, W/O To Balcony |
Dining | 11.0 x 10.0 ft | Combined W/Living, Laminate, W/O To Balcony |
Kitchen | 11.0 x 10.8 ft | Open Concept, Stainless Steel Appl, Centre Island |







