Size
-
Lot size
4100 sqft
Street frontage
-
Possession
1-29 days
Price per sqft
-
Taxes
$2,538.6 (2025)
Parking Type
-
Style
Other
See what's nearby
Description
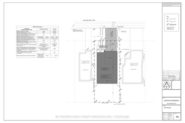
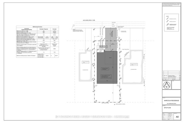
41'x100' development lot. Zoned for single family dwelling under old bylaw. Lot severed and ready for immediate building permit application. Curb depression and services installed by city in 2020 when street was rebuilt and capped at lot line. No street cut or servicing required. Attached approved site plan conceptual only and can be modified if changes meet current zoning. *For Additional Property Details Click The Brochure Icon Below*
Broker: ICI SOURCE REAL ASSET SERVICES INC.
MLS®#: X13015750
Property details
Parking:
-
Parking type:
-
Property type:
Vacant Land
Heating type:
-
Style:
Other
MLS Size:
-
Lot front:
41 Ft
Lot depth:
100 Ft
Listed on:
Apr 18, 2026
Show all details
Instant estimate:
Not Available
Insufficient data to provide an accurate estimate
i
High-
Mid-
Low-
Have a home? See what it's worth with an instant estimate
Use our AI-assisted tool to get an instant estimate of your home's value, up-to-date neighbourhood sales data, and tips on how to sell for more.




